Description du Projet
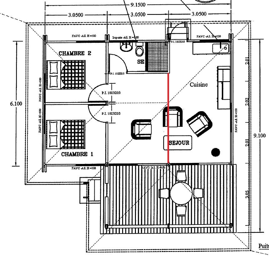
Bonjour,je cherche à séparer une pièce de mon Fare OPH, j'ai donc pensé à poser un mur en ossature métallique avec un habillage en fibro ou placo, je souhaite donc des proposition de réalisation. A moins bien sur que vous avez d'autres propositions, ci-joint le plan de fare et en rouge le mur que je souhaite poser. avec une porte pour le passage et potentiellement une fenêtre.





