Aller au contenu principal
Tahiti
Devis
.com
Voir les demandes
Demander un devis
Connexion
Inscription Pro
Devis
Description du Projet
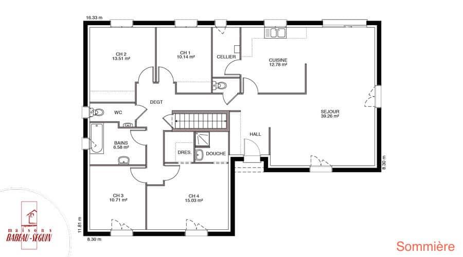
Construction maison pas trop cher et rapide
Photos
Pour déposer une offre, vous devez vous inscrire en tant que Professionnel :
M'inscrire
, si vous êtes déjà inscrit,
connectez-vous
Offres sur ce projet
Offres sur ce projet
JAYSERVICE
Papeete
21/04/2022 - 20:34
Montant privé
1jours
MTC and CO
Tahiti
13/06/2022 - 16:01
Montant privé
135jours
Infos Projet
Posté le
19/04/2022
Statut
En cours
Budget
2.000.000 - 20.000.000 xpf
Ville
Faaa
Délai
Tout de suite
Auteur
m-4146
Catégorie(s)
Gros œuvre & rénovation
×
Connexion
Nom d'utilisateur ou adresse électronique.
*
Mot de passe
*
Se connecter
Demander un nouveau mot de passe