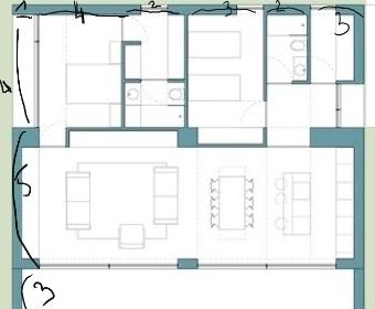
Description du Projet
La maison sera composée de 2 CH, 2 SDB, 1 Sejour, 1 Cuisine équipée, 2 Terasses, 1 buanderie et 1 Garage Couvert.
Avec de grands volumes, très lumineux avec beaucoup d'ouvertures pour faire passer le vent dans toute la maison.
La maison sera composée de 2 CH, 2 SDB, 1 Sejour, 1 Cuisine équipée, 2 Terasses, 1 buanderie et 1 Garage Couvert.
Avec de grands volumes, très lumineux avec beaucoup d'ouvertures pour faire passer le vent dans toute la maison.