Description du Projet
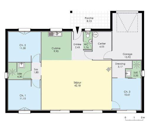
J'ai pour projet de construire ma maison: _je voudrais: _3 chambres dont 1 avec salle de bain. _1 pièce en plus qui va servir de salle de jeux. _1 salle de bain avec buanderie. _1 grand salon et 1 cuisine moderne ouvert vers le salon _1 grande terrasse Ensuite les matériaux a utilisé, j'aimerai que la maison soit construit en bois et en dur.


