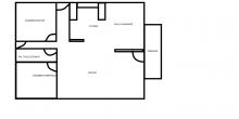
Description du Projet
Maison de 124,85m² comprenant : 2 chambre de 16m² (chacune, avec petit dressings intégré) 1 cuisine de 12m² 1 salle à manger 8m² 1 salle de bain et wc de 8m² 1 séjour de 25m² (marche d'escalier pour accéder au coins TV) 1 Terasse 14,85m²





