Description du Projet
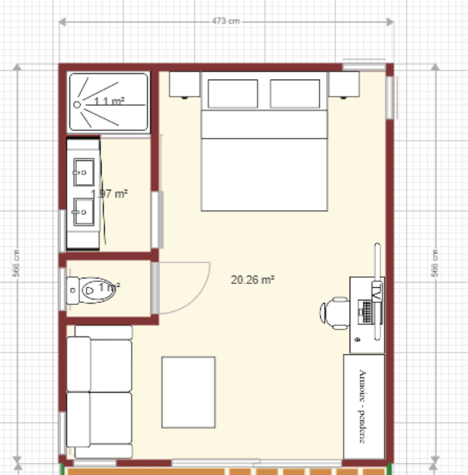
Projet : Construction de 4 bungalows sur piloti 1m50 d’élévation, 2 bungalows 2 personnes (1 avec piscine) enivron 25m2 habitable + 15 m2 de terrasse, 2 bungalow 4 personnes, environ 40m2 habitable + 15m2 de terasse. D’un fare pote de 8m/4m, avec porte pouvant se fermer sur 3 coté ou une solution pour s’abriter du vent. La construction aura lieu dans les tuamotu. Proposer les équipements sanitaires de bonne qualité en option permettant de modifier les équipements Le devis devra comprendre en option le transport, la manutention, la pose.






