Maison

Description du Projet

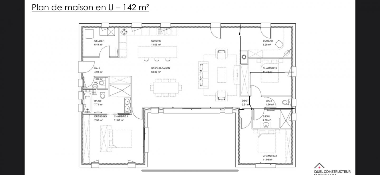
En forme U. 3chambres, 2sdb, 3 toilettes, salon et cuisine avec teressa.

La photo c’est le modèle sans le bureau

Photos

Offres sur ce projet

Offres sur ce projet