Description du Projet
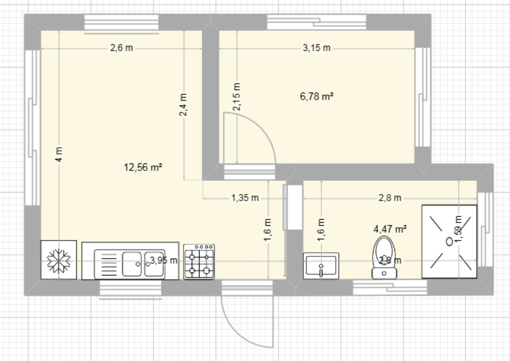
Je cherche quelqu'un qui pourrait me construire ma small house plein pied (style bungalow) pas trop chere et fonctionnelle. La maison est composée d'une chambre, d'une salle de bain et d'une cuisine ouverte sur le séjour. Mauru'uru.
