Description du Projet
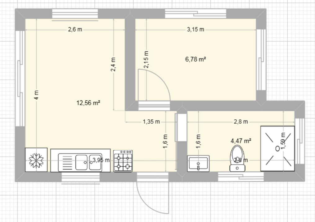
Je cherche quelqu'un pour construire une small house comprenant une petite chambre, une salle de bain, une cuisine ouverte sur le séjour. L'idée est de faire une petite maison fonctionnelle, pas très cher et simple.
Je cherche quelqu'un pour construire une small house comprenant une petite chambre, une salle de bain, une cuisine ouverte sur le séjour. L'idée est de faire une petite maison fonctionnelle, pas très cher et simple.