Description du Projet
Bonjour,
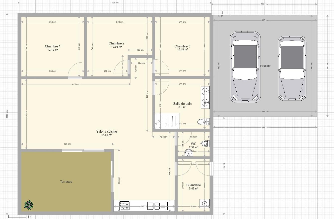
Devis pour construction d'une maison F4 sur pilotis (voir plan joint), sur terrain plat d'environ 650 m2, situé à Afaahiti.
Maison en béton, emprise de la construction au sol (11,50 * 11) hors toiture.
Faire un devis pour la maison + 1 devis pour le garage en appentis de la maison
Merci


