Construction maison 3ch en dure dalle béton pilotis

Description du Projet

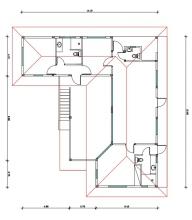
Recherche société en règle enregistrée n rc pour construction. Projet maison en dure sur pilotis à l avant. Terrain légère pente. Ci joints plans.

Photos

Offres sur ce projet

Offres sur ce projet

  • atonia Papeete

    02/04/2021 - 22:17
    Montant privé
    2jours
  • JAYSERVICE Papeete

    07/04/2021 - 10:46
    Montant privé
    1jours
  • 09/04/2021 - 19:21
    Montant privé
    0jours
  • Haamau Porinetia Société

    09/04/2021 - 21:53
    Montant privé
    0jours
  • Lucjo987 Société

    15/05/2021 - 13:02
    Montant privé
    100jours