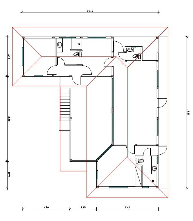
Construction maison 3ch en dure dalle béton pilotis

Description du Projet

Recherche société en règle enregistrée n rc pour construction. Projet maison en dure sur pilotis à l avant. Terrain légère pente. Ci joints plans.

Photos

Offres sur ce projet

Offres sur ce projet

Pour le moment, il n'y a aucune offre sur ce projet.