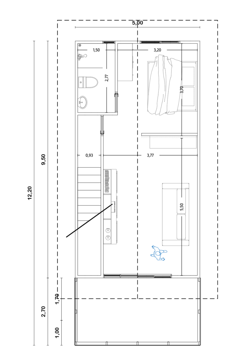
Description du Projet
Bonjour, je souhaiterai avoir un devis pour une construction de 3 bungalows à étage sur pilotis sur l'île de MOOREA. Les bungalows font 100m2, l'ossature et le bardage sera en bois mais le plancher sera en béton. Je vous échangerai plus d'informations par mail.




