Construction

Description du Projet

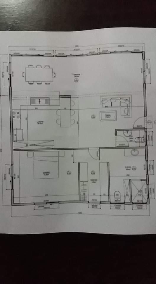
Maison principale sur taravao f2 11m par 10m ossature metalique terrasse fermé

Photos

Offres sur ce projet

Offres sur ce projet

  • mou Paea

    08/08/2021 - 08:52
    Montant privé
    0jours
  • atonia Papeete

    08/08/2021 - 18:49
    Montant privé
    2jours
  • Hbconstruction Société

    08/08/2021 - 19:20
    Montant privé
    11jours
  • MTC and CO Tahiti

    10/08/2021 - 10:32
    Montant privé
    0jours
  • 31/08/2021 - 08:15
    Montant privé
    90jours