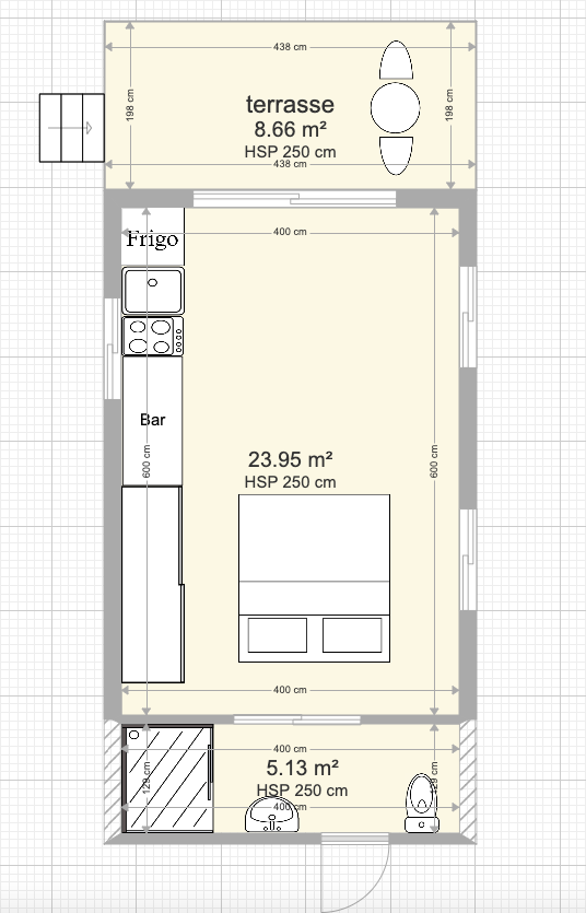
Description du Projet
Iaorana, Mon projet est de faire un bungalow individuel d'environ 30 m2 sur pilotis d'une hauteur d'environ de 50 cm : Le thème : associer le luxe ,le local et tropical Utiliser du fibro ciment pour l'intérieur des murs Vous pouvez trouver ci-joint le plan du bungalow - Chambre de 4 m de large x 6 m de long - Une salle de bain de 4 m de large x 1,30 m de long - Une terrasse cimenté de 2 m sur 4m








